
KLASSISK
Cinzah Tegnekontor arbeider med prosjekter innen klassisk arkitektur og utvikling av eksisterende bygg. Vårt fokus er å skape løsninger som ivaretar byggets opprinnelige karakter samtidig som funksjonalitet og moderne behov forbedres.
Vi tilbyr blant annet prosjektering av:
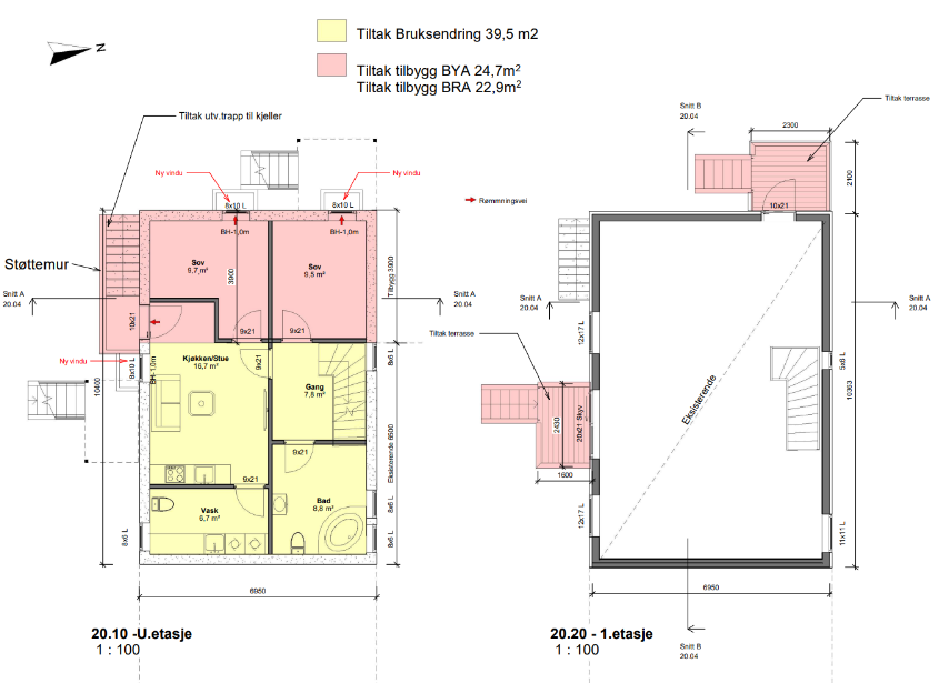
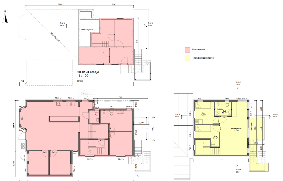
Tilbygg
Påbygg
Fasadeendringer
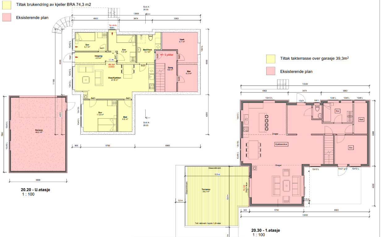
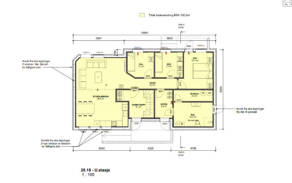
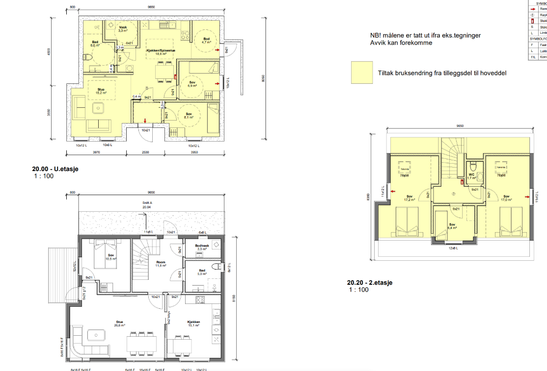
Bruksendring
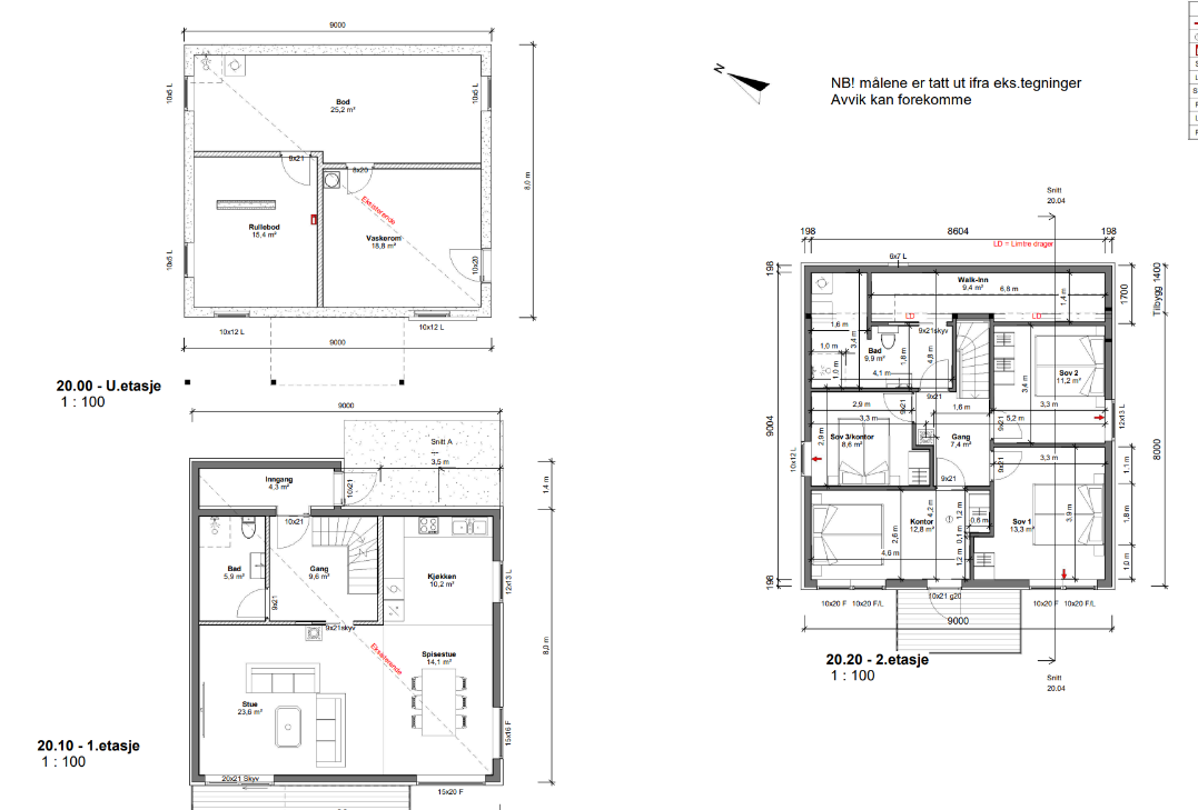
Endring og optimalisering av planløsning
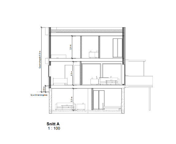
Endring av takform
Heving av tak
Gjennom nøye planlegging og arkitektonisk tilpasning sørger vi for løsninger som harmonerer med byggets stil og omgivelser.
Prosjekt i Sandnes-2024, Tilbygg/Fasadeendring
Tilbygg og fasadeendring av eksisterende bolig der tidligere løsning med skråtak ble oppdatert til et moderne design med flatt tak. Prosjektet inkluderte oppdatering av eksisterende tegninger og utvikling av nye arkitektoniske løsninger som gir boligen et mer tidsriktig uttrykk. Tegninger og prosjektering ble utført av Cinzah Tegnekontor i 2024.

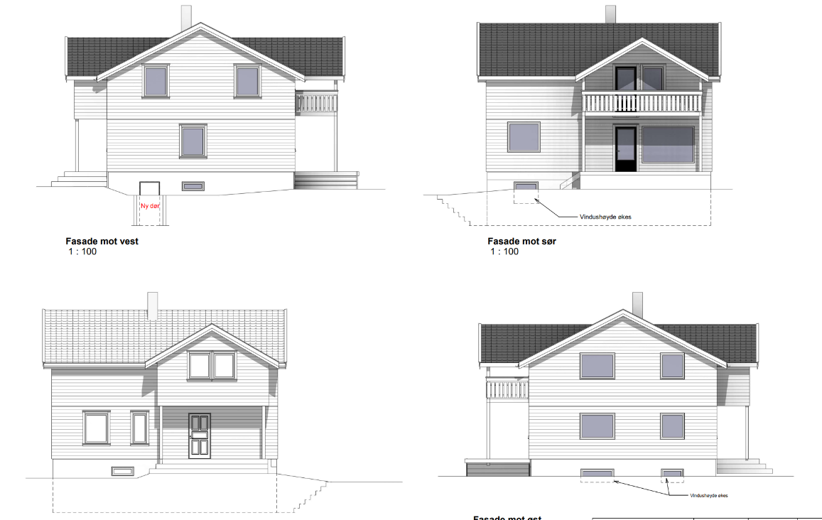
Fasadeendring og takløft – Sandnes 2025
Prosjektet i Sandnes, utført av Cinzah Tegnekontor, omfatter fasadeendring og takløft av et eldre hus. Bygningen har fått et moderne og attraktivt uttrykk, med lysere fasader, oppgradert form og forbedret romfølelse.
Visualisering – Tromsø 2025
Prosjektet i Tromsø 2025, utført av Cinzah Tegnekontor, visualiserer et hus fra 1952. Både eksisterende tegninger og skisser basert på kundens ønsker er laget for å vise dagens tilstand og forslag til moderne tilpasninger, med fokus på funksjon, romfølelse og estetikk.
Prosjekt 2026 – Skien
Cinzah Tegnekontor har prosjektert et omfattende boligprosjekt i Skien, med påbygg av en ny etasje, fasadeendring og oppdatert plansløsning. Prosjektet, for en bolig bygget i 1992, har som mål å modernisere huset både estetisk og funksjonelt.
Påbygget gir ekstra boareal og bedre utnyttelse av eksisterende rom, mens fasadeendringene oppgraderer bygningens uttrykk og gir et mer tidløst og moderne preg. Den nye plansløsningen forbedrer flyt og lysinnslipp, og skaper rom som er tilpasset dagens behov.
Prosjektet ble utført i 2026 med fokus på kvalitet, funksjon og estetikk, slik at boligen både fremstår moderne og samtidig harmonerer med eksisterende struktur.
PORTEFØLJE
MODERNE
Ny bolig – Prosjektering og tomteutvikling
Cinzah Tegnekontor arbeider med prosjektering og visualisering av nye boliger, med fokus på moderne arkitektur, funksjonelle plansløsninger og god tilpasning til tomt og omgivelser. Hver bolig utvikles med tanke på optimale lysforhold, gode uteområder og effektiv utnyttelse av arealet.
I planleggingen legges det vekt på tomtens terreng, plassering av bygget, adkomst, solforhold og samspillet mellom inne- og uterom. Dette gir boliger som både er estetisk attraktive og praktiske i bruk.
Gjennom tegning og visualisering utvikler Cinzah Tegnekontor løsninger som kombinerer moderne uttrykk, funksjonalitet og god tilpasning til både tomt og eksisterende bebyggelse.
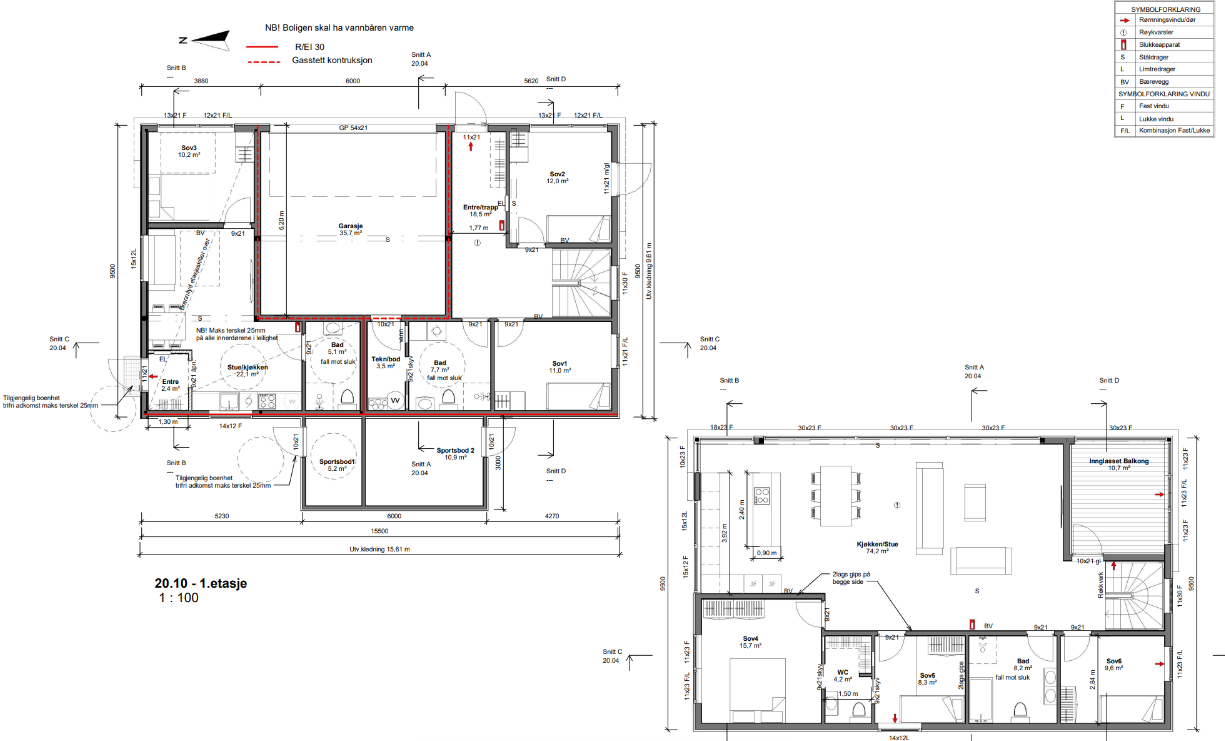
Prosjekt - 2024 – Ny enebolig med utleiedel, Lura Sandnes
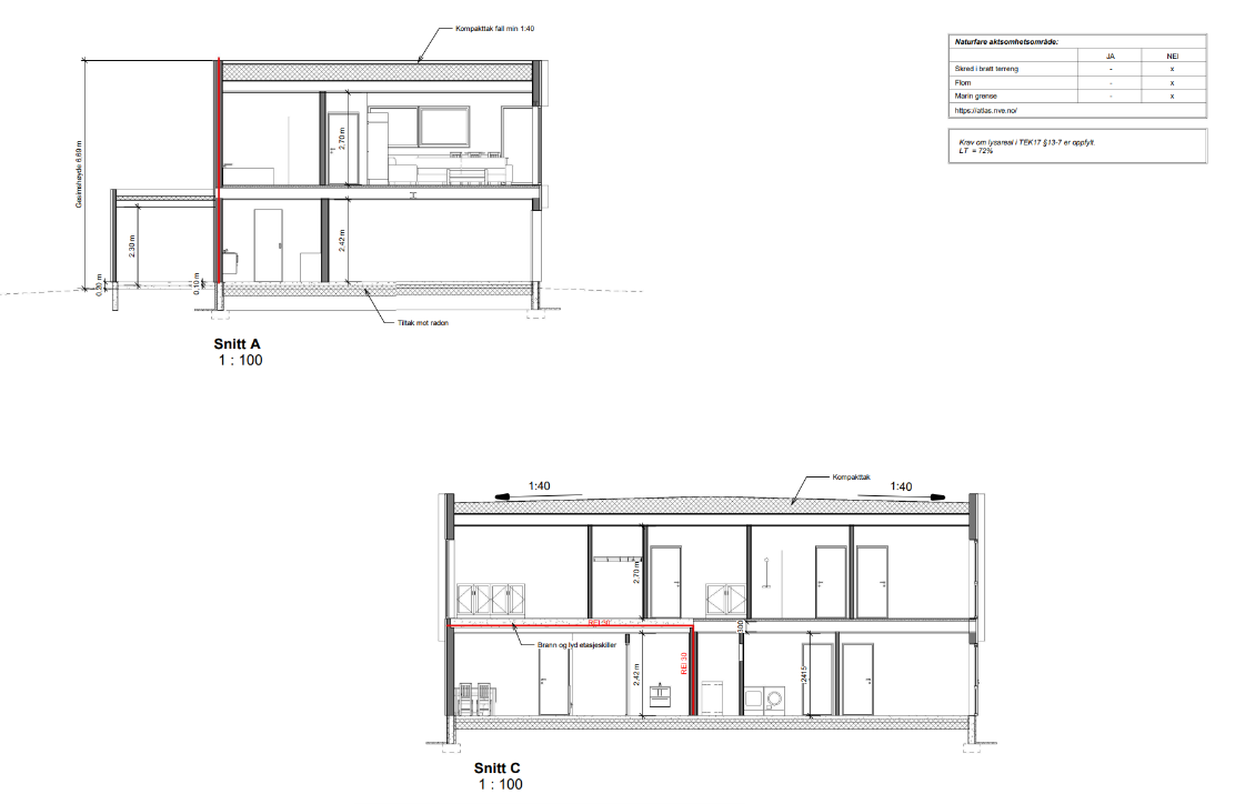
Cinzah Tegnekontor har prosjektert og visualisert en moderne enebolig på ca. 260 m² med flatt tak og et stilrent arkitektonisk uttrykk. Boligen har et bruksareal (BRA-i) på 256,4 m² og er utformet med fokus på funksjonalitet, gode romforbindelser og rikelig dagslys gjennom store vindusflater.
Prosjektet omfatter også fradeling av eiendom for etablering av ny boligtomt. Boligen er planlagt som en romslig og solrik familiebolig med gode uteområder og optimal tilpasning til tomten.
Prosjektet inkluderer integrert carport, utebod og en egen utleieleilighet som gir fleksibilitet og økt bokvalitet. Arkitekturen kjennetegnes av rene linjer, moderne materialbruk og en gjennomtenkt planløsning som skaper en naturlig flyt mellom inne- og uterom.
Cinzah Tegnekontor har også utført konstruksjonsteknisk prosjektering i prosjektet. Målet har vært å kombinere estetikk, funksjon og høy bokvalitet i et attraktivt boligområde på Lura i Sandnes.

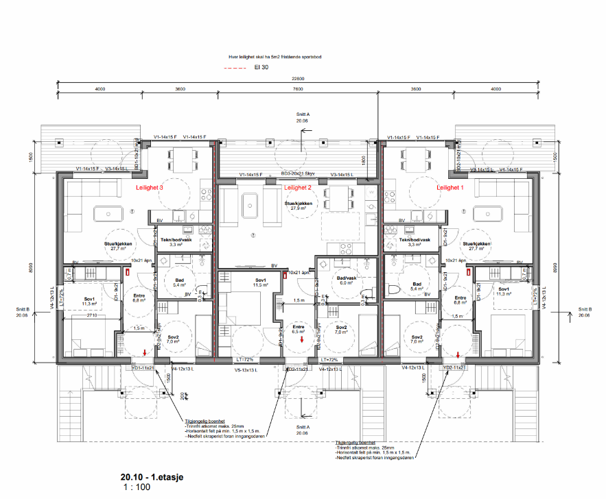
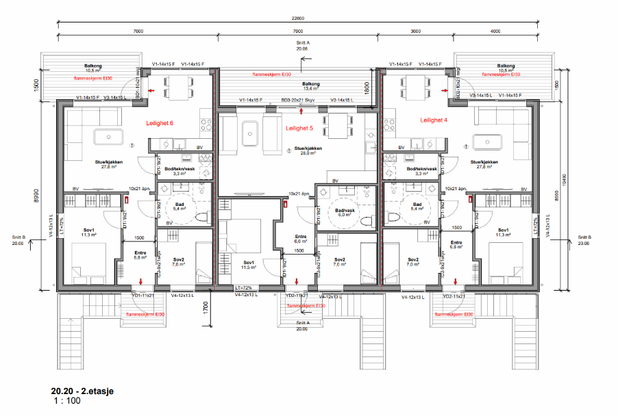
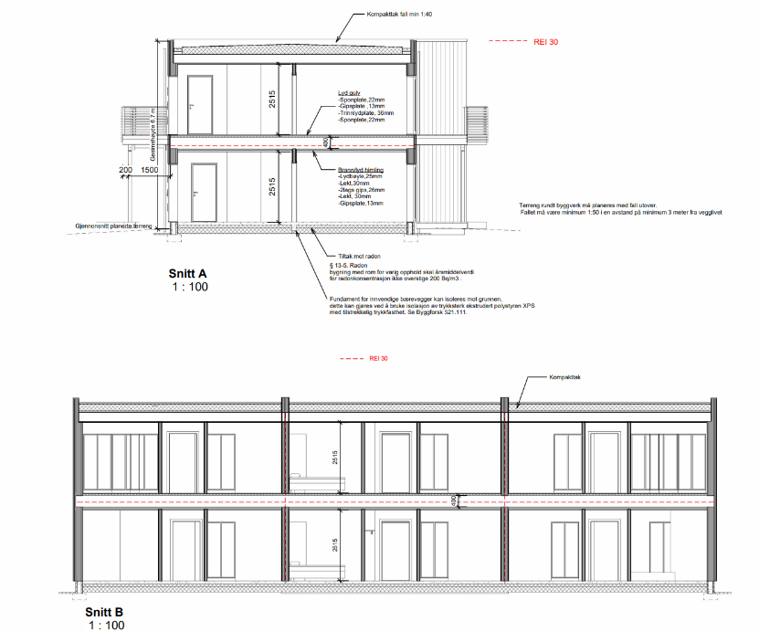
Prosjekt – Fire 6-mannsboliger, Bjørnafjorden (2025)
Prosjekt – Fire 6-mannsboliger, Bjørnafjorden (2025)
Cinzah Tegnekontor har utviklet fire moderne 6-mannsboliger på en ny tomt i Bjørnafjorden. Hver bolig har et bruksareal (BRA-i) på 382 m² og kombinerer gjennomtenkte planløsninger, effektiv arealutnyttelse og et moderne arkitektonisk uttrykk, med en funksjonell parkeringsløsning som ivaretar tilgjengelighet og komfort.
Vi har ansvar for konstruksjonsteknisk prosjektering og detaljerte arbeidstegninger, med fokus på solide løsninger, byggbarhet og høy kvalitet. Prosjektet skaper attraktive, praktiske og langsiktige boliger som møter dagens og fremtidens behov.
Dette prosjektet viser Cinzah Tegnekontors kompetanse innen større boligprosjekter, innovativ arkitektur og teknisk presisjon, og hvordan moderne boligkonsepter kan realiseres med estetikk og gjennomføring på høyt nivå.
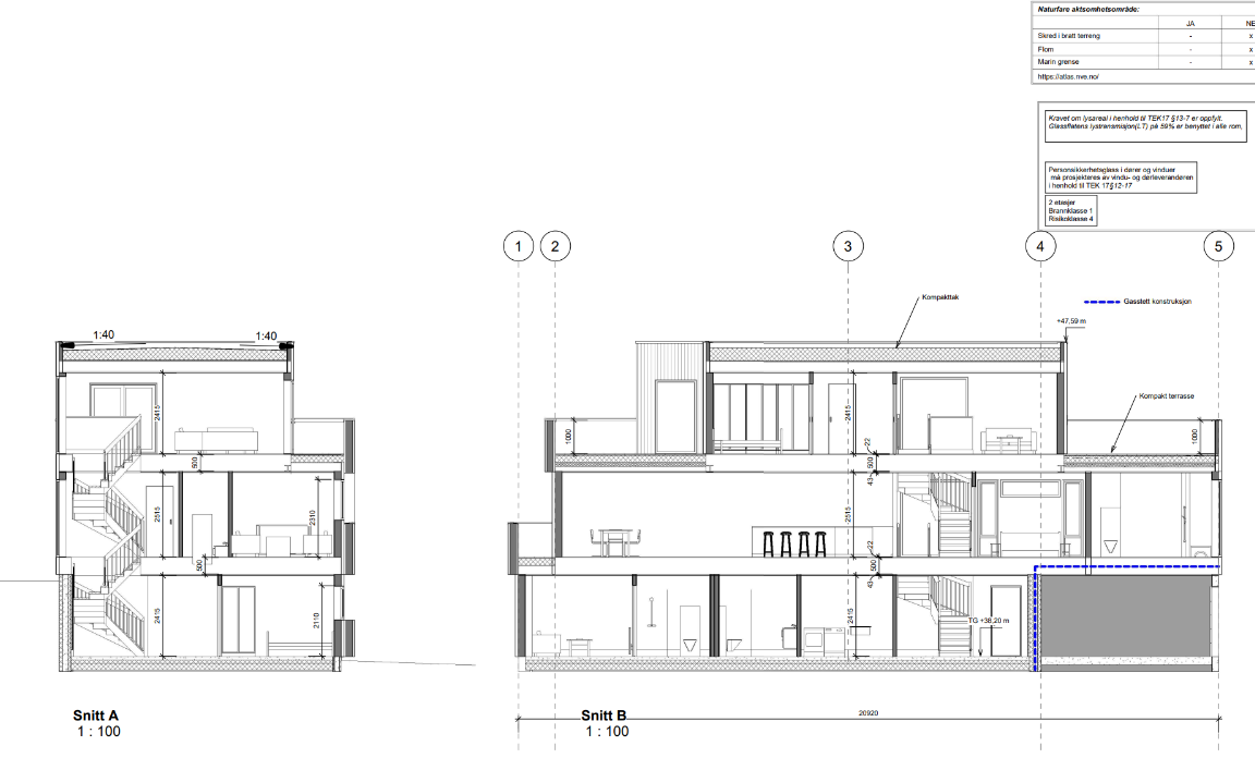
2025 - Prosjekt – Enebolig med utleiedel, Bjørnafjorden
Cinzah Tegnekontor har prosjektert en unik, moderne 3-etasjes enebolig med flatt tak på en attraktiv tomt i Bjørnafjorden. Boligen har et bruksareal (BRA-i) på 313,6 m² og er utformet med fokus på funksjonalitet, lysrike rom og et stilrent, moderne uttrykk.
Prosjektet inkluderer en egen utleieleilighet, som gir fleksibilitet og ekstra bokvalitet, samt gjennomtenkte løsninger som sikrer god utnyttelse av hver etasje. Arkitekturen kombinerer estetikk, moderne materialbruk og rene linjer, og skaper et hjem som både er attraktivt og praktisk.
Cinzah Tegnekontor har hatt ansvar for hele prosessen, fra visualisering og plansløsning til konstruksjonsteknisk prosjektering, med mål om å levere en bolig med høy kvalitet, funksjon og langvarig verdi.



























































